Duo-line - lustro
Nie zachęcamy gratisami, stałymi pseudo-promocjami, dodatkami. Przekazujemy UNIKATOWE ROZWIĄZANIA DOPRACOWANE W KAŻDYM SZCZEGÓLE wybranych technologii, systemów i konkretnych urządzeń oraz producentów z licznymi certyfikowanymi ekipami wykonawczymi. Nasze projekty to nie tylko koncepcja oraz standard branżowy do celów uzyskania pozwolenia na budowę, ale gotowe rozwiązanie budowy domu samowystarczalnego.
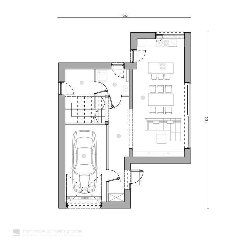
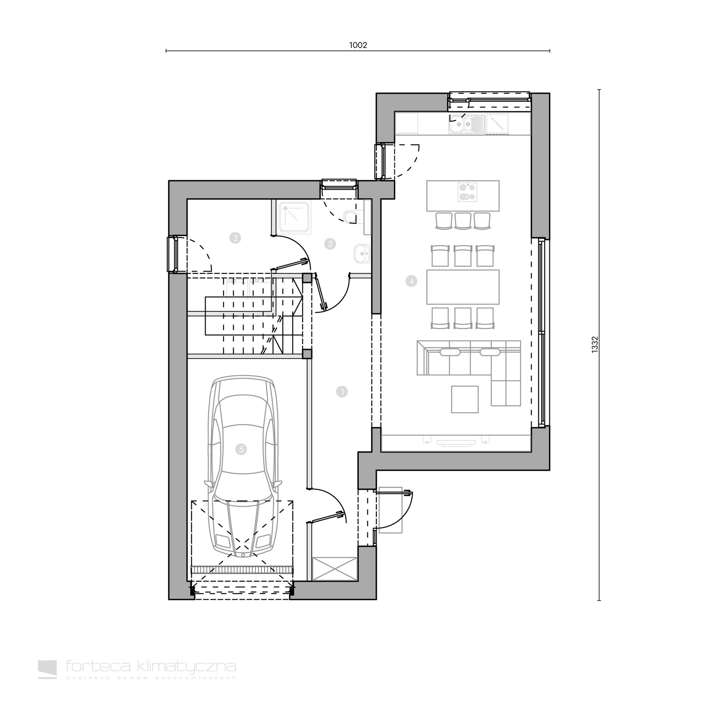
powierzchnia całkowita – 148,1m2
powierzchnia użytkowa (mieszkalna) – 122,5m2
powierzchnia zabudowy – 105,4m2
wysokość – 9m
wysokość do okapu - 5,2m / 4,3m
kąt nachylenia dachu - 40o
Minimalna wielkość działki - szerokość 14m x długość 22,5m
Minimalna wielkość działki dla domu samowystarczalnego – szerokość 18m x długość 45m (gabaryty działki uwzględniają instalacje sanitarne – odwierty do pompy gruntowej, studnia, retencja)
Dom jednorodzinny z poddaszem użytkowym
4 pokoje, 1 kuchnia, 2 łazienki, garaż jednostanowiskowy (18,3mkw), pomieszczenie techniczne (7,4m2), pralnia.
Klasyczna bryła domu dwuspadowego po rozcięciu i przesunięciu dwu części, dodatkowo podkreślone barwą. Kto powiedział, iż mały dom ma mieć nudną formę?
Wielkie przeszklenia, funkcjonalność wnętrza, bezpieczne schody zabiegowe i to wszystko w domu na najbardziej typowe w Polsce, wąskie działki.
Budynek zeroemisyjny, niskoenergetyczny, samowystarczalny, bezpieczny i zdrowy dla użytkowników.
- FORTECA KLIMATYCZNA – NOWA KATEGORIA DOMÓW
Forteca klimatyczna. Żadne z powszechnie stosowanych, zdefiniowanych pojęć charakterystyki nowoczesnych domów nie ma właściwej pojemności.
Stworzyliśmy zatem nowe. Nasze domy są zerokosztowe i samowystarczalne. Całkowicie autonomiczne, czyli niezależne od mediów. Spełniają wszystkie wymogi poszanowania środowiska naturalnego. Domy Fortecy klimatycznej są przygotowane na zmiany klimatyczne – wichury, ulewy, susze, upały. Są też wysoce bezpieczne - odporne na włamania i zdrowe dla użytkowników – zdrowa woda, czyste i nawilżone powietrze, całkowicie wyeliminowane substancje toksyczne i LZO.
- ZAWARTOŚĆ OBSZERNEJ DOKUMENTACJI
Wybudowanie domu spełniającego wszystkie wytyczne Fortecy klimatycznej to szereg rozwiązań, które zastosowane łącznie powodują niespotykany komfort mieszkańców podczas użytkowania zdrowego i zerokosztowego siedliska.
Nasze dokumentacje nie zostały przygotowane z myślą o wizji i funkcji architektonicznej, w której przestrzeń można dowolnie adaptować, zaś system ogrzewania czy wentylacji jest zamienny i opisany tylko w celu uzyskania pozwolenia na budowę.
W wysoce nowoczesnym domu korzystając z dobrodziejstwa nauki i innowacyjnych produktów, wszystkie rozwiązania nie mogą podlegać sugestiom i decyzjom robotników budowlanych. Nie zostawiamy żadnych niedopowiedzeń.
Projekty Fortecy klimatycznej stanowią szereg szczegółowych rozwiązań. Dopracowany został każdy detal. Wskazany został każdy produkt (np. uzdatnianie wody to szereg konkretnych urządzeń nie wymagających wymiany filtrów i dodatkowej obsługi – w dokumentacji zostały opisane wszystkie rekomendowane przez nas produkty ze względu na jakość, trwałość, weryfikację użytkowników, stosunek ceny do jakości, łatwą dostępność, maksymalną bezobsługowość). Szczegółowo dobraliśmy też kolorystykę – dopasowaliśmy konkretne zestawienia kolorystyczne np. RAL stolarki, bramy, dachu w zestawieniu z nazwą barwy farby elewacyjnej 2 wybranych producentów. To tylko 2 przykłady, ale cała nasza dokumentacja została tak właśnie dopracowana.
Wymiana lub rezygnacja z poszczególnych zaprojektowanych przez nas rozwiązań powoduje przerwanie łańcucha zależności, który gwarantuje 100% sprawności w każdej opisanej dziedzinie (dom zerokosztowy, zdrowy, bezpieczny, odporny na wichurę, odporny na podtopienia itd. Itd.)
Przygotowanie dokumentacji każdego z oferowanych projektów trwało prawie rok. Zespół 11 osób ściśle współpracował z producentami wskazanych rozwiązań. Nasze dokumentacje zostały też przez tychże producentów zweryfikowane.
Dokumentacje przekazujemy w 3 kompletach i ewentualnie dodatkowo przesyłamy weTransferem całość w formacie pdf.
- KOSZTY BUDOWY
Koszt budowy - podajemy obecne koszty faktyczne brutto fortecy klimatycznej z wszystkimi instalacjami sanitarnymi, grzewczymi i energetycznymi (podstawa wyliczeń wskazana w zakładce koszty budowy)
Stan surowy zamknięty:
Forteca klimatyczna – 515.000,00PLN
Stan surowy deweloperski (z instalacjami wewnętrznymi):
Forteca klimatyczna – 875.000,00PLN
- TECHNOLOGIA - NISKOENERGETYCZNY / PASYWNY / GREEN
Ep 0 [kWh/(m²·rok)]
Ściany zewnętrzne: Ytong Energo Ultra+ 48cm (bez dodatkowego docieplania) + tynk mineralny gładki bez polimerów + farba krzemianowa
Dach: konstrukcja stalowa / płyty dachowe Ytong / izolacja termiczna – płyty PIR / blacha na rąbek stojący Ruukki i rynna ukryta. System mocowania fotowoltaiki
Strop i nadproża: Ytong
Brak mostków termicznych – mury, stropy, nadproża, ciepły montaż stolarki, kompozytowe ramki do szyb
Wentylacja mechaniczna z odzyskiem ciepła (rekuperacja) + mocne filtry antysmogowe + nagrzewanie + nawilżanie + sterylizacja
Ogrzewanie – gruntowa pompa ciepła Nibe / Rehau
Chłodzenie – gruntowy powietrzny wymiennik ciepła + chłodzenie pasywne podłogowe - Rehau
Woda – studzienna lub wodociągowa z systemem uzdatniania i sterylizacji, dualny obieg wody szarej – deszczówka
Retencja wody deszczowej – wybrany produkt, obliczona wielkość zbiornika podziemnego
Kanalizacja – opcjonalnie - przydomowa, bezobsługowa oczyszczalnia ścieków
Energia – panele PV full black + inteligentny falownik + magazyn energii oraz przyłącze elektryczne energii z sieci
Bramy garażowe – segmentowe w wersji thermo - Hörmann
Szyby – zespolone 3-szybowe w opcji Standard lub rewolucyjnej Premium
Stolarka zewnętrza – aluminiowa Yawal
- BEZPIECZNY DOM
www.schron.pro – przydomowy schron kategorii P – opcjonalnie
Bezpieczne drzwi i ramy okienne ale również szkło bezpieczne Stadip w klasie P5A – RC2.
Antywłamaniowy system bramy garażowej
Materiały i technologie budowlane – wysoka odporność ogniowa
- ZDROWY DOM
Gwarancja czystego powietrza – system rekuperacji z filtrami F9, nawilżaniem systemowym, kanałowym i sterylizacją
Gwarancja czystej, uzdatnionej i sterylizowanej wody
Gwarancja zdrowych murów – system bez blokady przepływu powietrza i wilgoci
Eliminacja BPA w wodzie kranowej i systemie kanałowym wentylacji.
Eliminacja wysoce rakotwórczego formaldehydu i ftalanu we wszystkich materiałach budowlanych.
Kompendium wiedzy załączane do dokumentacji – eliminacja LZO we wszystkich produktach podczas urządzania wnętrz.
- ROZWIĄZANIA POZANORMATYWNE I ODPORNOŚĆ NA ZMIANY KLIMATYCZNE
Wyprzedzamy czas, więc część naszych rozwiązań nie doczekała się opracowań i normatyw.
1. Przeciwdziałamy wylesianiu – brak materiałów drewnianych i drewnopochodnych w budowie domu lub okładziny z drewna z rozbiórki.
2. Obowiązkowe doprowadzenia tzw. „siły” do garażu w każdym projekcie elektrycznym – domowa instalacja ładowania samochodów elektrycznych.
3. Rewolucja w systemie okiennym – w wersji Premium nie trzeba wybierać, czy okna mają być energooszczędne czy też odbijające ciepło zewnętrzne.
4. Zdrowe mury spełniające najwyższe normy energooszczędności – całkowite odrzucenie tzw. docieplenia styropianem.
5. Wprowadzenie zasady intymnego domu do wszystkich projektów gotowych – maksymalna izolacja od strefy publicznej w celu zwiększenia komfortu użytkowników.
6. Przewidziane rozwiązania dla niepełnosprawnych użytkowników jednorodzinnych domów piętrowych.
7. Wykorzystanie w toaletach szarej wody deszczowej – zaprojektowany system dualny z odpowiednią centralą.
Postanowiliśmy również przygotować nasze domy na efekt zmian klimatycznych – silne wichury, ulewy z podtopieniami, susze, upały. Oto nasze rozwiązania.
1. Zmiana konstrukcji dachów spadowych, brak okapów – przeciwdziałamy zjawisku „latających dachów” podczas wichur.
2. Pełna retencja wody opadowej – zbiorniki podziemne wraz z rozsączaniem – eliminacja podtopień podczas gwałtownych ulew.
3. Umiejętne korzystanie z retencjonowanej deszczówki – możliwość podlewania w systemie automatycznym i/lub wykorzystanie jesienią, zimą i wczesną wiosną szarej wody w systemie dualnym do spłukiwania w toaletach (oszczędność 30% czystej, pitnej wody)
4. Własna obowiązkowa studnia – gwarancja zabezpieczenia wody podczas suszy i potencjalnego racjonowania wody z sieci wodociągowej.
5. Prawidłowo przeliczona grubość szkła zewnętrznego – odporność na wichury.
6. Innowacyjny zestaw szyb w wersji Premium – szkła wewnętrzne zatrzymujące ciepło w budynku zimą, zewnętrzne o doskonałym współczynniku odbicia ciepła słonecznego.
7. Pasywny system chłodzenia – podłogowe oraz wentylacyjne poprzez gruntowy powietrzny wymiennik ciepła – do 8 stopni obniżenie temperatury w domu i to równomiernie.
8. Własny prąd z paneli PV – niezależność podczas awarii dostaw w wyniku zerwania sieci w trakcie wichur.
- CHARAKTERYSTYKA ENERGETYCZNA / NEUTRALNOŚĆ KLIMATYCZNA
Charakterystyka energetyczna:
Ep 0 [kWh/(m²·rok)]
U ściany 0,15 W/(m²·K)
U okien - 0,5 W/(m²·K)
U dachu - 0,11 W/(m²·K)
Współczynniki przepuszczalności zewn. energii słonecznej szyb g: 0,35 / 0,51 Wszystkie współczynniki znacznie poniżej wymagań WT2021 / poziom domu niskoenergetycznego
Neutralność klimatyczna domu tzw. NET ZERO, czyli całkowita zeroemisyjność:
Energia – panele PV full black + inteligentny falownik + magazyn energii oraz przyłącze elektryczne energii z sieci
Ogrzewanie – gruntowa pompa ciepła
Chłodzenie – gruntowy powietrzny wymiennik ciepła + chłodzenie pasywne podłogowe
Wentylacja mechaniczna z odzyskiem ciepła (rekuperacja)
Brak kominków
- WIZUALIZACJA WNĘTRZA W OPARCIU O FAKTYCZNE PRODUKTY GŁÓWNIE POLSKICH PROJEKTANTÓW W WERSJI SELF DESIGN
- sofa – Boxx, Producent: Iker
- lampa nad sofą i stołem – Itka 50 Suspension z 3 żarówkami LED, świecąca idealnie równomiernie Producent: Artemide
- lampa wolnostojąca - Cadmo, Producent: Artemide
- regał - ROLL, Producent: Bonaldo, do kupienia: https://www.marion.com.pl/oferta/4/salon/294/regaly/produkt/2761/roll
- grafika w salonie – Maciej Nowakowski, zamówienie architekt@studiowektor.com.pl
- stół drewniany – Bol, Producent: Loft Decora
- krzesła – Lizz Mat, Producent: Kartell
- malowanie ścian bez LZO – farby zolo-wapienne, zmywalne, tańsze lub porównywalne do dostępnych. KEIM. Kolory – czerwony – Nr 9019, beż - Nr 9112. Zakup poprzez dystrybutora: www.keim.pl

















